Если цена в объявлении изменится, мы сразу сообщим вам об этом на электронную почту.
Нажимая «Подписаться», вы соглашаетесь с правилами.
продам 1-к, Раздольная, 294 358 900 ₽
23 мая 2024
Дата публикации объявления
Обн. 12 мая
Дата обновления объявления
8
Количество просмотров (+ просмотры за сегодня)
Спецпредложение
Турбо x8
101 370 ₽/м²
Чистая продажа
Термин "Чистая продажа" означает, что в квартире никто не прописан или
есть куда выписаться и вывезти вещи. Это лучший вариант для покупателя.
Вероятность срыва сделки минимальна.
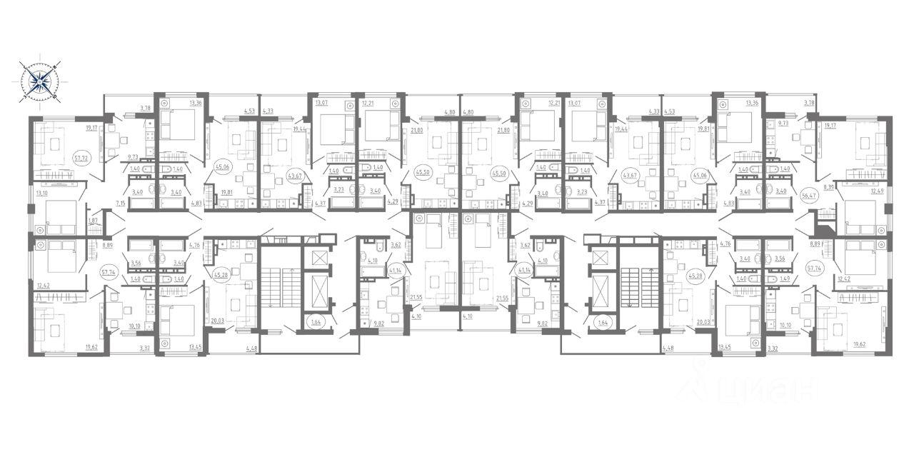
Квартира
Общая площадь43 м2
Жилая площадь13,5 м2
Кухня20,2 м2
Тип собственностисвидетельство о праве собственности