Если цена в объявлении изменится, мы сразу сообщим вам об этом на электронную почту.
Нажимая «Подписаться», вы соглашаетесь с правилами.
продам 1-к квартира6 409 800 ₽
7 июля 2025
Дата публикации объявления
Обн. сегодня
Дата обновления объявления
Спецпредложение
Турбо x8
135 000 ₽/м²
Чистая продажа
Термин "Чистая продажа" означает, что в квартире никто не прописан или
есть куда выписаться и вывезти вещи. Это лучший вариант для покупателя.
Вероятность срыва сделки минимальна.
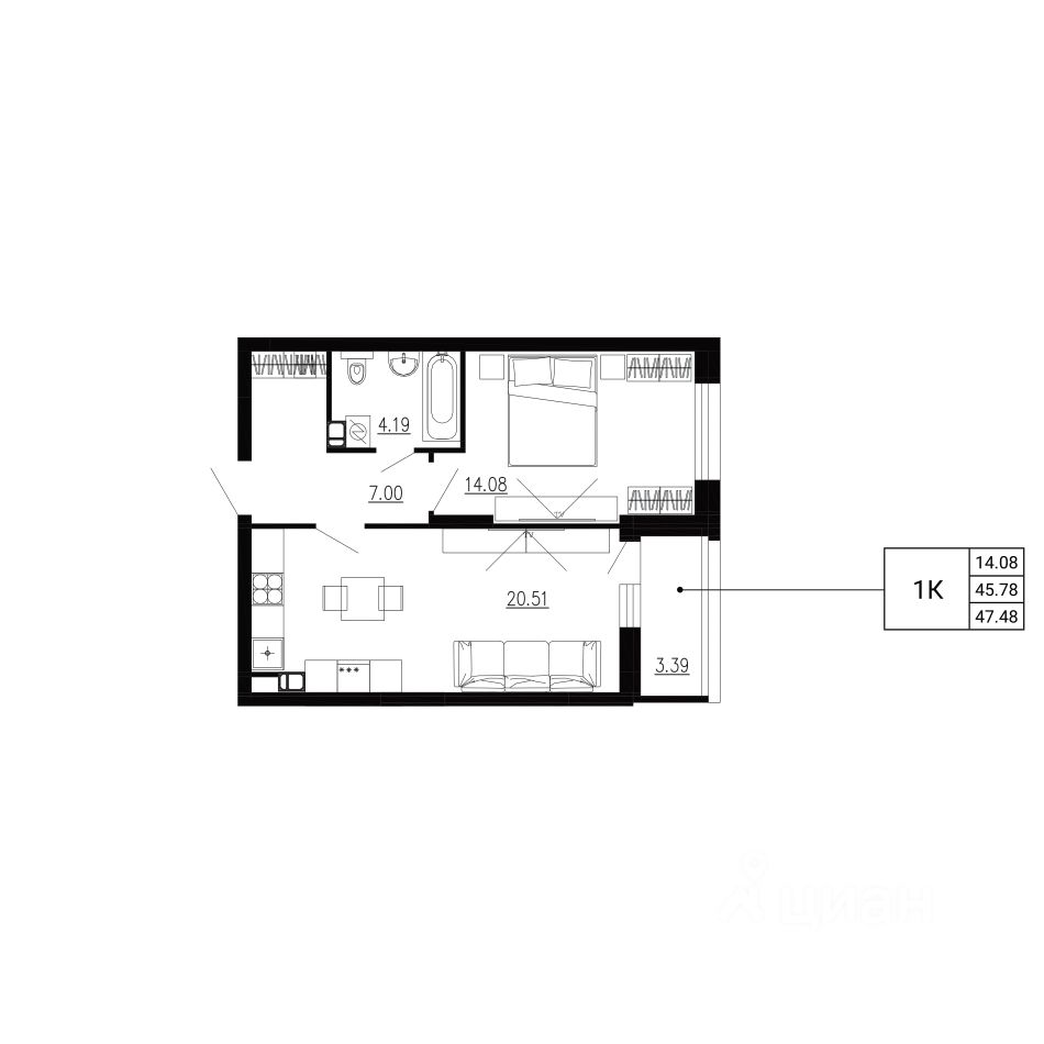
Квартира
Общая площадь47,48 м2
Жилая площадь14,1 м2
Тип собственностидоговор долевого участия
Дом
Срок сдачи4 кв. 2027 г.
Этаж6 из 24
Материал домапанель
Престижная квартира в современном ЖК бизнес-класса. Удобная планировка, панорамные окна, высокие потолки.