Если цена в объявлении изменится, мы сразу сообщим вам об этом на электронную почту.
Нажимая «Подписаться», вы соглашаетесь с правилами.
продам 1-к квартира6 314 840 ₽
13 окт
Дата публикации объявления
Обн. вчера
Дата обновления объявления
3
Количество просмотров (+ просмотры за сегодня)
Спецпредложение
Турбо x8
133 000 ₽/м²
Чистая продажа
Термин "Чистая продажа" означает, что в квартире никто не прописан или
есть куда выписаться и вывезти вещи. Это лучший вариант для покупателя.
Вероятность срыва сделки минимальна.
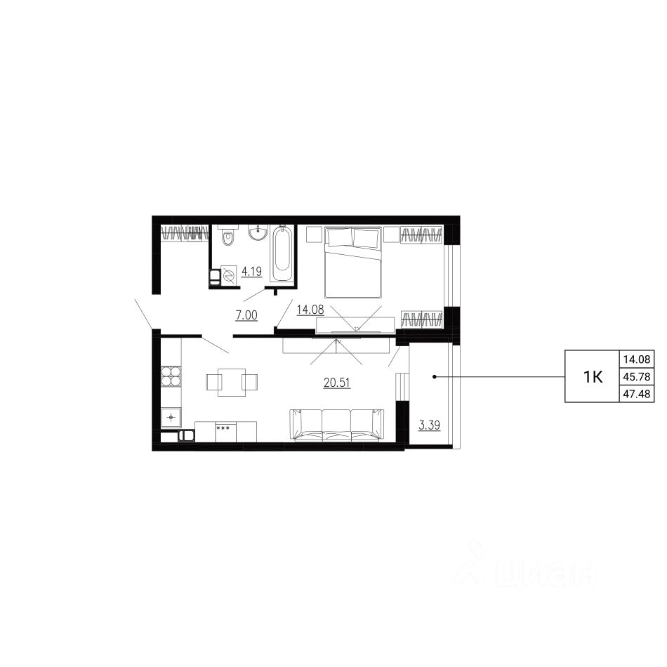
Квартира
Общая площадь47,48 м2
Жилая площадь14,1 м2
Тип собственностидоговор долевого участия
Дом
Срок сдачи4 кв. 2027 г.
Этаж6 из 24
Материал домапанель
Престижная квартира в современном ЖК бизнес-класса ''Ломоносов'' в Советском районе города Орла. 24-х этажные башни с захватывающими панорамными видами. Удобная планировка, скоростные лифты, паркинг, закрытая территория, умный дом.