Если цена в объявлении изменится, мы сразу сообщим вам об этом на электронную почту.
Нажимая «Подписаться», вы соглашаетесь с правилами.
продам 1-к квартира6 816 960 ₽
14 окт
Дата публикации объявления
Обн. вчера
Дата обновления объявления
Спецпредложение
Турбо x8
143 575 ₽/м²
Чистая продажа
Термин "Чистая продажа" означает, что в квартире никто не прописан или
есть куда выписаться и вывезти вещи. Это лучший вариант для покупателя.
Вероятность срыва сделки минимальна.
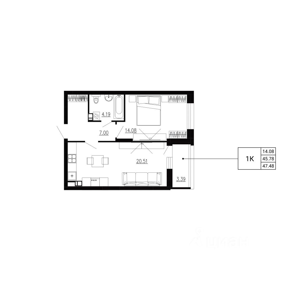
Квартира
Общая площадь47,48 м2
Жилая площадь14,1 м2
Тип собственностидоговор долевого участия
Дом
Срок сдачи4 кв. 2027 г.
Этаж16 из 24
Материал домапанель
Престижная квартира в современном ЖК бизнес-класса. Удобная планировка, панорамные окна, высокие потолки.