Код лота: РАД-436572. Реализуется на торгах.
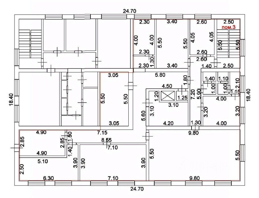
Помещение, назначение: нежилое, площадь 253, 9 кв. м. , этаж 2, кадастровый номер: 57:07:0050128:173, расположенное по адресу: Российская Федерация, Орловская область, Дмитровский р-н, г. Дмитровск, ул. Социалистическая, д. 46, пом. 3, находящееся в собственности Продавца, о чем в Едином государственном реестре недвижимости 11. 12. 2024 г. сделана запись о регистрации 57:07:0050128:173-57/063/2024-4. Существующие ограничения (обременения): не зарегистрировано. Помещение расположено на 2-ом этаже нежилого здания. Инженерные коммуникации: водопровод, электричество, отопление. Состояние помещения - хорошее.
https://catalog. lot-online. ru/index. php?dispatch=products. view&product_id=1584266












